SSMELE 750-626

https://ssmadretierra.com/web/image/product.template/182/image_1920?unique=316e10e

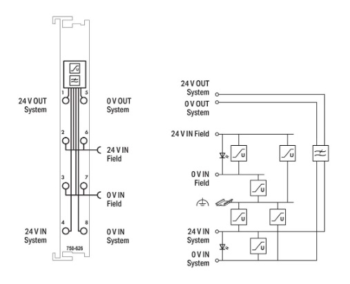
Filtro para bloque de alimentación; 24 V DC
Tiempo de entrega: 3 a 4 días.

3,076.09 3076.09 MXN 3,076.09

3,076.09

    Esta combinación no existe.